
Poloroubenka Sedlák je prostorný dům, který spojuje tradiční roubenou část se zděnou stavbou. Díky tomu, nabízí lepší tepelnou stabilitu a skvěle zapadne do venkovského prostředí. Dominantou domu je velký vikýř, který přináší dostatek světla do podkroví a dodává interiéru příjemnou vzdušnost. V přízemí nechybí kachlová kamna s ležením, která jsou nejen zdrojem tepla, ale i místem odpočinku a rodinné pohody. Sedlák je ideální volbou pro ty, kdo chtějí propojit kouzlo tradiční roubenky s praktickými výhodami moderního bydlení.
- Zastavěná plocha: 119 m2
- Užitná plocha: 185,8 m2
- Dispozice: 5+kk
Cena od (bez DPH):
Uvedená cena je za uzavřenou hrubou stavbu.



Půdorysy
- Zastavěná plocha: 119 m2
- Užitná plocha: 185,8 m2
Přízemí
- 1.1 Zádveří: 5,1 m2
- 1.2 Chodba: 12,5 m2
- 1.3 Technická místnost: 6,1 m2
- 1.4 WC: 2,3 m2
- 1.5 Koupelna: 5,9 m2
- 1.6 Obývací pokoj + KK: 47,4 m2
- 1.7 Pokoj: 13,8 m2

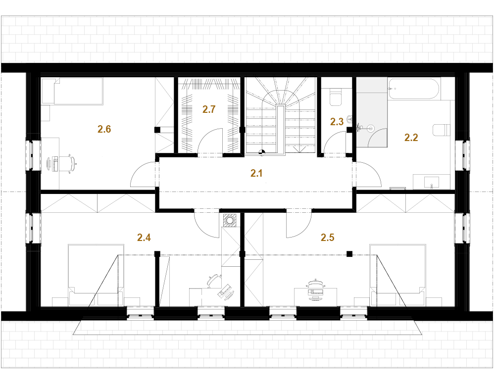
1. patro
- 2.1 Chodba: 16,1 m2
- 2.2 Koupelna: 11,4 m2
- 2.3 WC: 2,4 m2
- 2.4 Pokoj: 21 m2
- 2.5 Pokoj: 22,2 m2
- 2.6 Pokoj: 14,7 m2
- 2.7 Šatna: 4,9 m2
