
Menší, ale útulná roubenka, která se svojí výškou hřebene 6 metrů skvěle zapadne do chatových oblastí i chráněných krajinných zón. V přízemí nabízí pohodlný obývací prostor s kuchyňským koutem a v podkroví dva útulné pokoje. Díky své kompaktní velikosti je ideální pro menší rodinu nebo pár, kteří hledají vlastní místo k odpočinku. Tremp je vhodný jak pro víkendové pobyty, tak i pro celoroční bydlení.
- Zastavěná plocha: 49,98 m2
- Užitná plocha: 80,1 m2
- Dispozice: 4+kk






Půdorysy
- Zastavěná plocha: 49,98 m2
- Užitná plocha: 80,1 m2
Přízemí
- 1.1 Zádveří: 4,2 m2
- 1.2 Koupelna, WC: 5,1 m2
- 1.3 Obývací pokoj + KK: 22,0 m2
- 1.4 Pokoj: 9,1 m2

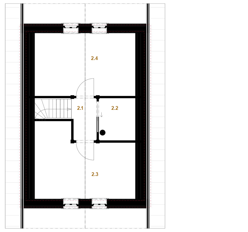
1. patro
- 2.1 Chodba: 4,1 m2
- 2.2 WC: 4,0 m2
- 2.3 Pokoj: 15,7 m2
- 2.4 Pokoj: 15,9 m2

Prohlédněte si tuto roubenku v realizacích
Tuto roubenku jsme již postavili, můžete si ji prohlédnout zde.