
Tradiční roubenka s podlomenou sedlovou střechou, která v sobě spojuje klasický vzhled a praktické řešení interiéru. Uvnitř najdete prostorný obývací pokoj propojený s kuchyní, ideální pro společné chvíle celé rodiny, a také dvě koupelny s WC pro maximální komfort.Je to skvělá volba jako rekreační chata, ale díky promyšlené dispozici se hodí i k celoročnímu bydlení čtyřčlenné rodiny.
- Zastavěná plocha: 70 m2
- Užitná plocha: 102,7 m2
- Dispozice: 4+kk
Cena od (bez DPH):
Uvedená cena je za uzavřenou hrubou stavbu.



Půdorysy
- Zastavěná plocha: 70 m2
- Užitná plocha: 102,7 m2
Přízemí
- 1.1 Zádveří: 4,6 m2
- 1.2 Koupelna, WC: 4,4 m2
- 1.3 Obývací pokoj + KK: 40,4 m2
- 1.4 Technická místnost: 2,3 m2

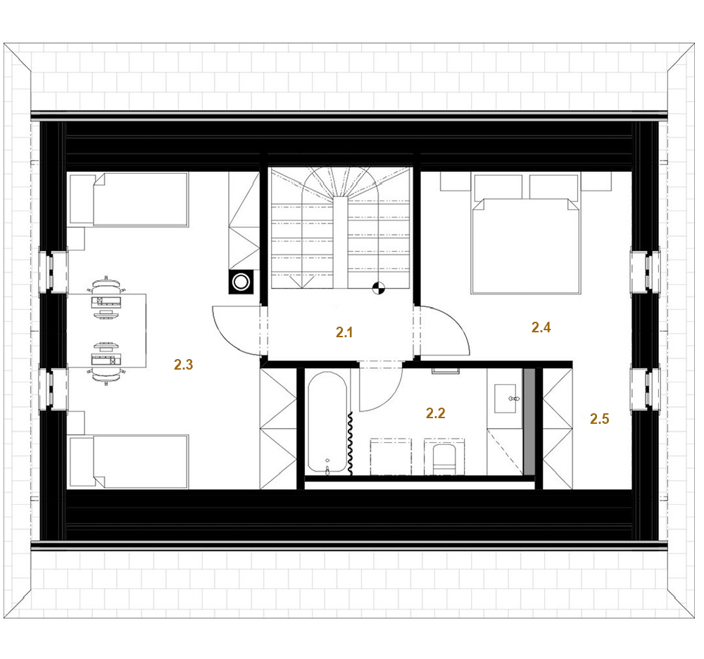
1. patro
- 2.1 Chodba: 8,7 m2
- 2.2 Koupelna, WC: 6,3 m2
- 2.3 Pokoj: 17.5 m2
- 2.4 Pokoj: 10,7 m2
- 2.5 Šatna: 3 m2
